Sage Box

Commercial Design Studio—2022
Programs Used: Revit, Enscape, Photoshop

01 Concept

*CLICK IMAGES TO ENLARGE

Sage Box is a health, wellness, and lifestyle brand that provides 100% organic and nutritional branded meals, snacks, and supplements delivered to your door. We aspire to advance human health with our ready-to-eat organic nutritional meals and our digital marketplace containing an array of branded snacks, supplements, and ingestible wellness products.

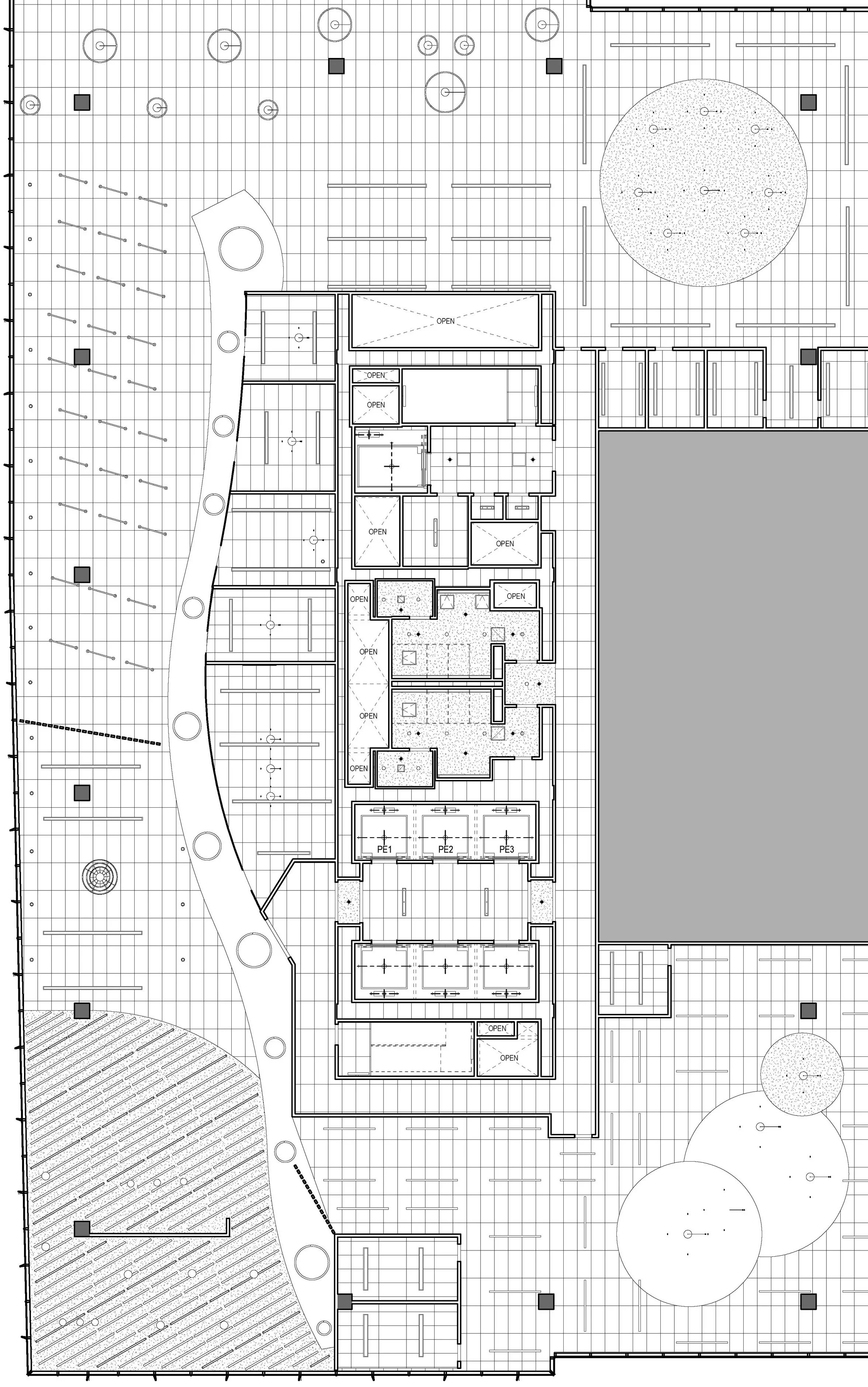
02 Plans

14

15

1

2

12

11

10

9

8

13

3

4

16

18

17

19

7

20

21

5

22

6

Floor Plan
1    ENTRY LOUNGE/PRESENTATION         
2    CAFE
3    FOUNDER'S OFFICE
4    FOUNDER'S OFFICE
5    CLIENT EXPERIENCE
6   CO-WORKING
7   SERVER
8   CONFERENCE ROOM
9   MEETING
10   PROJECT
11   PROJECT
12   MEETING
13  TALENT ENGAGEMENT
14   PRODUCT INNOVATIONS
15   PRIVATE/CO-WORKING
16   BREAKOUT
17   IDEATION ZONE
18   COPIER
19   STORAGE
20   INDIVIDUAL ROOM
21   WELLNESS ROOM
22   MOTHER’S ROOM
RCP

03 Sections

Section A-A
Section B-B

Ramp Section Detail

Plan
Section

Cafe

Cafe Dining

Client Experience