Orchid Koi

Hospitality Design Studio—2022
Programs Used: Revit, Enscape, Photoshop

01 Concept

Orchid Koi is inspired by the Japanese culture of izakaya, a Japanese drinking establishment that also serves food to accompany the drinks. This restaurant will take the experience to a higher level by carrying out a feeling of serenity and extravagance while being intentional with the cohesiveness of the space. Traditional Japanese architecture and elements will contrast witht the building’s existing inustrial vibe, creating an overall open and cozy setting for the guests to enjoy.

*CLICK IMAGES TO ENLARGE

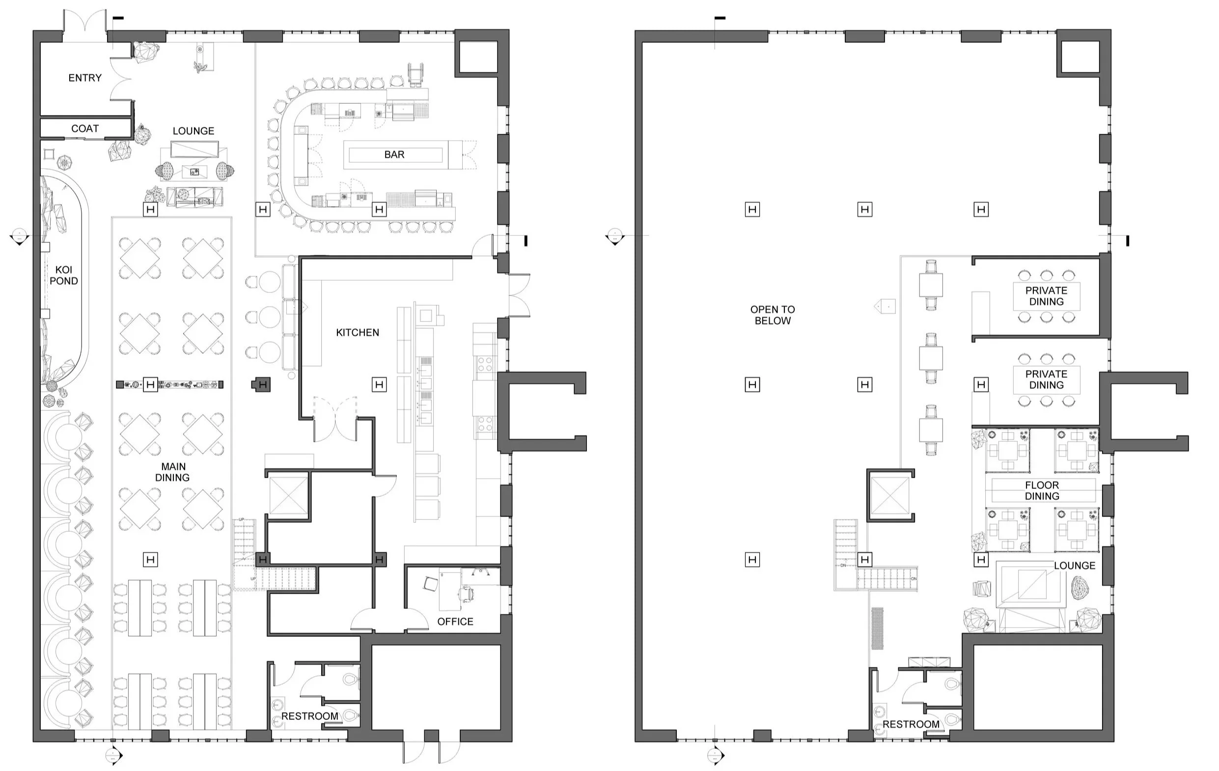
02 Floor Plans

First Floor Plan
Mezzanine Floor Plan

03 Reflected Ceiling Plans

First Floor RCP
Mezzanine Floor RCP

Main Dining

Booth Dining

Mezzanine Floor Dining

04 Sections

Section A-A 

1

Section B-B

3

5

Bar

05 Bar Plate

Bar Floor Plan
Front Elevation
Working Bar Elevation
Back Bar Elevation
Bar Plate Section